ECdrive

ECdrive T2-FR * Automatic linear sliding door system in escape and rescue routes for doors up to 140 kg leaf weight

ECdrive T2 / ECdrive T2-FR
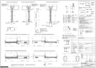
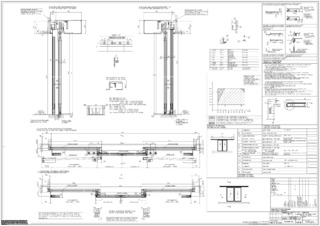
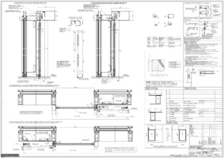
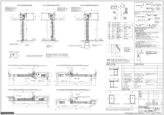
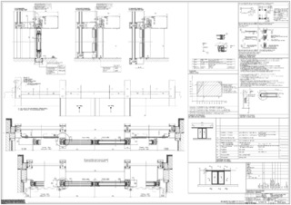
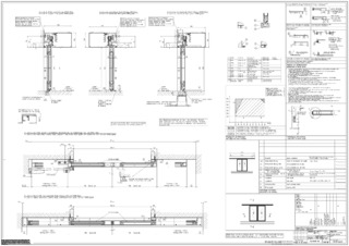
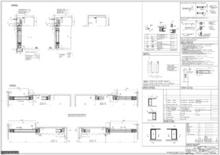
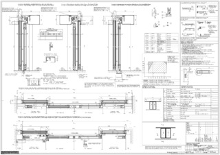
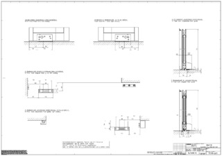
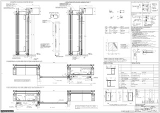
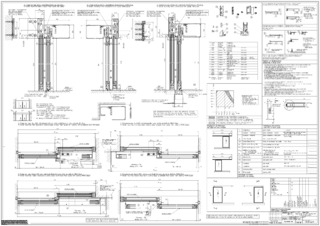
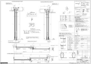
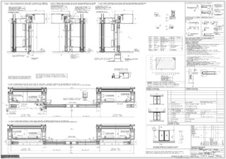
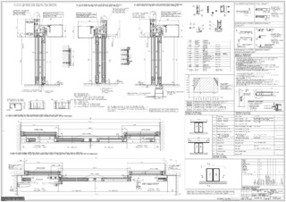
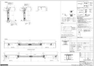
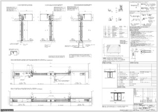
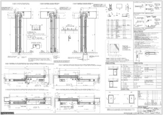
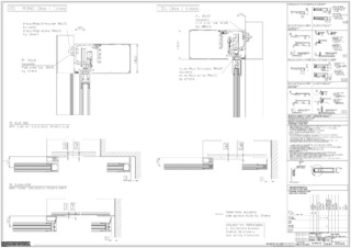
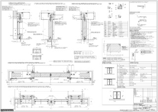
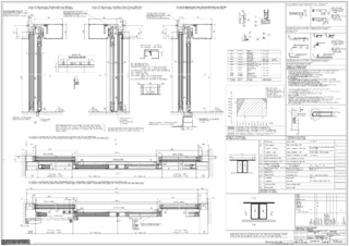
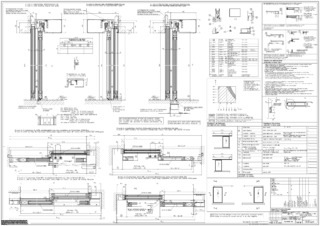
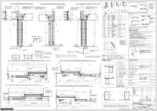
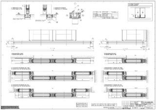
  • Slim design with a cover height of just 100 mm for greater creative freedom
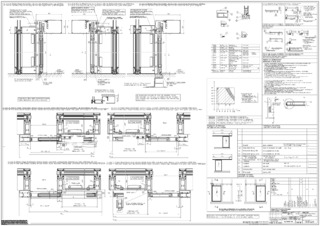
  • With double roller carriage and GCprofile Therm up to 140 kg leaf weight
  • Efficient installation thanks to pre-drilled tracks and elongated holes
  • Full floor guide available for controlled diversion of rainwater
  • Integrated cable routings make cable laying easier
  • Can be networked, and integrated into the building automation via open standard (BACnet)
Show more
  • Independent error recognition and recording
  • Freely configurable inputs and outputs for different functions
  • Integrated rechargeable battery for emergency opening in the event of a power failure
  • Self-cleaning roller carriage reduces maintenance effort and costs
  • Various mechanical and electrical locks are optionally available
  • Service interface for easy maintenance
Contact us

With its streamlined design, the new ECdrive T2-FR guarantees new design possibilities with an outstanding price-performance ratio. It can be combined with the GCprofile Therm profile system, to further improve energy efficiency.

Application Areas

  • Single and double leaf sliding door systems along escape and rescue routes
  • Interior and exterior doors with high access frequency
  • Complete solution for entrance areas with GCprofile Therm and fanlight
  • If extra impermeability or energy efficiency are needed
  • Opening widths from 700 to 3000 mm possible
  • Door leaf weight of up to 140 kg per leaf
  • Suitable profile systems are fine-framed profile systems with insulating and MONO glass, GCprofile Therm, toughened safety glass clamping profile, on-site frame and wooden leaves

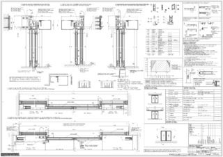
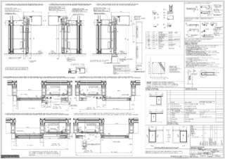
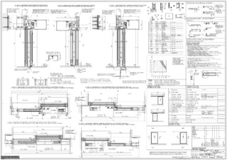
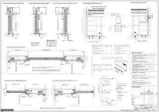
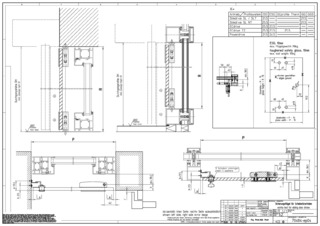
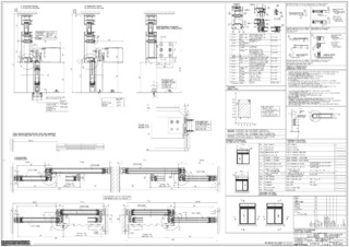
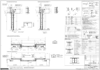
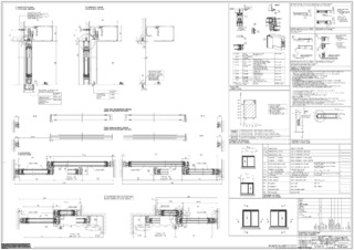
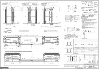
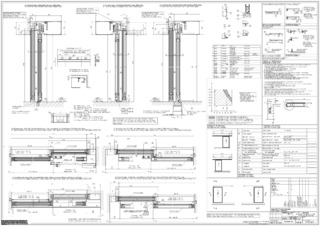
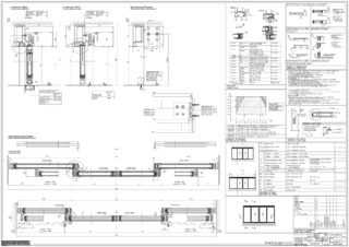
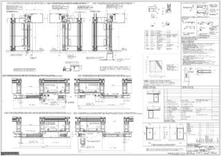
Technical data

ECdrive T2-FR
For 1-leaf door systems Yes
For 2-leaf door systems Yes
Fine-framed insulating glass Yes
MONO glass fine-framed Yes
ESG clamping profile Yes
Framed leaf (on site) Yes
Height 100 mm
Depth 190 mm
Leaf weight (max.) 1-leaf 120 kg
Leaf weight (max.) 1-leaf with GCprofile Therm and double roller carriage 140 kg
Leaf weight (max.) 2-leaf 120 kg
Leaf weight (max.) 2-leaf with GCprofile Therm and double roller carriage 140 kg
Opening width 1-leaf 700 mm - 3000 mm
Opening width 1-leaf with GCprofile Therm 1500 mm
Opening width 2-leaf 900 mm - 3000 mm
Opening width 2-leaf with GCprofile Therm 3000 mm
Service temperature -15 - 50 °C
IP rating IP20
Disconnection from mains Main switch in the drive
Standard conformity AutSchR, DIN 18650, DIN EN ISO 13849: Performance Level D, EN 16005

Downloads

Variants & Accessories

Contact

Centrala GEZE Polska +48-224-404-440 GEZE Service +48-224-404-450