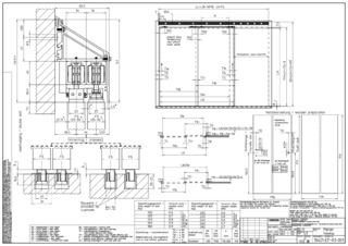
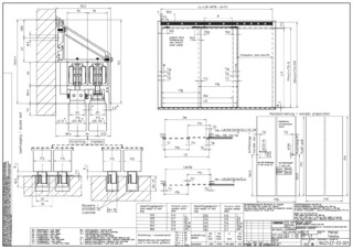
Perlan 140 Teleskop * Telescopic sliding fitting system for ceiling mounting of timber leaves, consisting of basic components, track and telescopic Perlan set, double-leaf, can be extended to three-leaf
- For timber, plastic, and metal leaves
- For two-leaf or three-leaf systems of up to 140 kg per leaf
- Can already be used for extremely narrow leaf widths from 475 mm upwards up to leaf widths of max. 1700 mm
- Pre-assembly of the telescope set on the door leaf allows for comfortable installation
- Needs 2x basic components, 2x track and 1x telescopic Perlan double leaf set --> Product features
Application Areas
- Space-saving door hardware for large passages
- Living, office, and conference areas as well as hotels
- All other product features correspond to the Perlan 140 sliding system
Installation situations in reference objects and videos
Technical data
| Perlan 140 Teleskop | |
| Leaf material | Wood |
| Leaf weight (max.) | 140 kg |
| Number of leaves | 2-leaf, 3-leaf |
| Leaf width (min.) | 475 mm |
| Leaf width (max.) | 1700 mm |
| Track geometry | straight |
| Corrosion protection class | 2 |
| Type of installation | Ceiling |
| DIN direction | left / right |
Downloads
Variants & Accessories
* Notice about the products displayed
The products mentioned above may vary in form, type, characteristics and function (design, dimensions, availability, approvals, standards etc.) depending on the country. For questions please contact your GEZE contact person or send us an E-Mail .