Free swing door closer 1-leaf

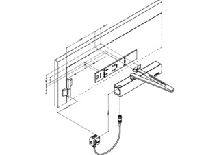
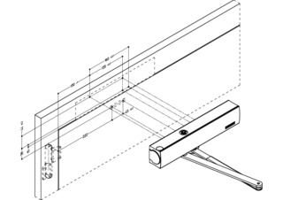
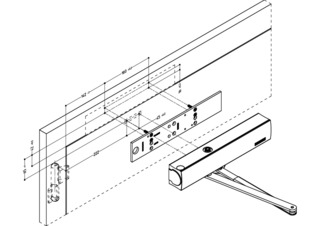
TS 4000 EFS * Overhead door closer with link arm for single leaf doors of up to 1400 mm leaf width with electric free swing function

Door closer TS 4000 EFS Overhead door closer with free swing link arm and electrohydraulic hold-open function, closing force size 1-6
  • Closing force EN 1-6 with variable adjustment
  • Operating voltage 24 V DC
  • Can be used for right and left hand doors without conversion
  • Free swing function makes it possible to pass through the door with little physical force required
  • Free swing function once the door has been opened once to approx. 90°
  • Smoke switch control unit can be connected, whose signal makes the door close automatically in the event of a fire
Show more
  • Mechanical latching action which accelerates the door shortly before the closed position
  • Closing speed can be individually adjusted
  • Visual closing force display for easy control of the setting
  • All functions can be set from the front (except for latching action)
Contact us

Application Areas

  • Fire and smoke protection doors
  • Right and left single-action doors
  • Single-action doors up to 1400 mm leaf width
  • Door leaf installation hinge side
  • Hold-open systems with integrated hold-open function with free swing
  • Barrier-free access in accordance with DIN 18040

Technical data

TS 4000 EFS
Closing force in accordance with EN 1154 EN 1 - 6
Barrier-free in accordance with DIN 18040 up to leaf width (max.) in mm 1400 mm
Leaf width (max.) 1400 mm
Type of installation Door leaf installation hinge side
Opening angle (max.) 180 °
Input voltage 24 V DC
Suitability for fire protection doors Yes
Free swing area 80 ° - 175 °
Closing force adjustable Yes, stepless
Adjustable closing speed Yes
Latching action adjustable Yes, via link arm
Position of closing force adjustment Front
Visual closing force display Yes
Hold-open function Electrically, for free swing function

Downloads

Variants & Accessories

Contact

Centrala GEZE Polska +48-224-404-440 GEZE Service +48-224-404-450