Door opening restriction

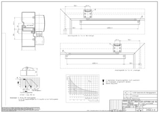
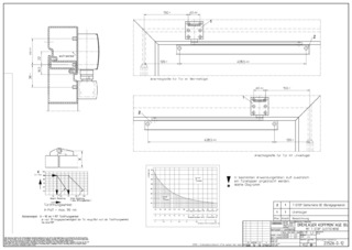
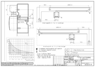
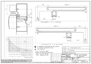
T-Stop guide rail * For opening restriction or hold-open of doors without door closer

GEZE T-Stop guide rail with floor-mounted pivot bearing
  • Holds doors without door closer open, not self-closing
  • Can be used for right and left hand doors without conversion
  • The door opening angle is limited and a door stopper is usually no longer required
  • Door area is more attractive without door stopper, no tripping hazards or dirty corners
  • Crushing between the door leaf and floor mounted door stopper is avoided
Contact us

Application Areas

  • Right and left single-action doors
  • Opening restrictor for single-action doors without door closer
  • Door systems without smoke and fire protection requirements
  • For combination of an automatic swing door drive with a TS 5000 on double leaf door systems

Technical data

T-Stop guide rail
Type of installation Door leaf installation hinge side, Transom installation opposite hinge side, Transom installation hinge side, Door leaf installation opposite hinge side
Hold-open function Optional

Downloads

Contact

Centrala GEZE Polska +48-224-404-440 GEZE Service +48-224-404-450