Guide rail 1-leaf

TS 3000 V BC * Overhead door closer with guide rail for single leaf doors with a leaf width up to 1100 mm

TS 3000 V overhead door closer with guide rail Can be installed on right and left single-action doors/fire and smoke protection doors.
  • Closing force of EN 2-4 with variable adjustment
  • Can be used for right and left hand doors without conversion
  • Integrated back check, slows down doors that are thrown open forcefully
  • Hydraulic latching action which accelerates the door shortly before it is closed
  • Closing speed can be individually adjusted
  • All functions can be set from the front (except for closing force)
Contact us

Application Areas

  • Fire and smoke protection doors
  • Right and left single-action doors
  • Single-action doors up to 1100 mm leaf width
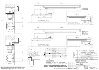
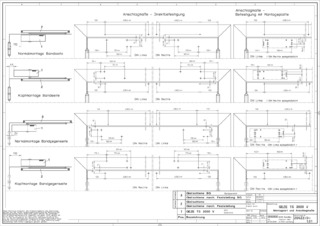
  • Door leaf installation hinge side
  • Door leaf installation opposite hinge side
  • Transom installation hinge side
  • Transom installation opposite hinge side

Technical data

TS 3000 V BC
Closing force in accordance with EN 1154 EN 2 - 4
Barrier-free in accordance with DIN 18040 up to leaf width (max.) in mm 1100 mm
Leaf width (max.) 1100 mm
Type of installation Door leaf installation hinge side, Door leaf installation opposite hinge side, Transom installation hinge side, Transom installation opposite hinge side
Opening angle (max.) 180 °
Suitability for fire protection doors Yes
Closing force adjustable Yes, stepless
Adjustable closing speed Yes
Latching action adjustable Yes, via valve
Back check integrated Yes, hydraulically adjustable
Position of closing force adjustment At the side
Hold-open function Optional

Downloads

Variants & Accessories

Contact

Centrala GEZE Polska +48-224-404-440 GEZE Service +48-224-404-450