Zintegrowany GEZE ActiveStop * Obustronna amortyzacja do drewnianych drzwi rozwieranych w zastosowaniach wewnętrznych
- Bezstopniowo regulowany kąt otwarcia drzwi 80°–140°
- Możliwość stosowania na drzwiach prawych i lewych bez konieczności przestawiania
- Kontrolowane otwieranie i zamykanie drzwi o ciężarze skrzydła do maks. 45 kg
- Delikatne zatrzymywanie, ciche zamykanie i komfortowa pozycja otwarcia drzwi
- Skrzypiące drzwi, przytrzaśnięte palce, uszkodzenia w ścianach i meblach są praktycznie wykluczone
- Bezpieczne zatrzymanie drzwi w pozycji otwarcia i brak konieczności stosowania blokady drzwiowej
- Amortyzacja otwierania i zamykania w stanie zabudowanym ustawiana zaworem
- Zintegrowany zawór bezpieczeństwa zapewnia ochronę przed przeciążeniem
Obszary zastosowań
- Prawe i lewe drewniane drzwi przymykowe we wnętrzu
- Drzwi pokojowe o dużym komforcie przechodzenia
- Drzwi przymykowe o szerokości skrzydła do 1100 mm
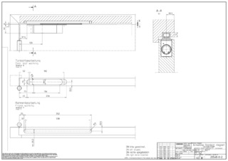
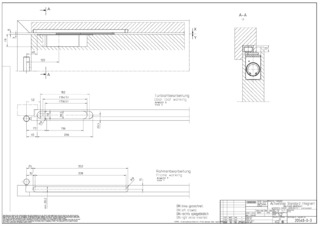
- Montaż zintegrowany w skrzydle drzwi
- Dostępy bez barier według DIN 18040-2
Sytuacje montażowe w budynkach referencyjnych i filmy
Specyfikacje produktu
| Zintegrowany GEZE ActiveStop | |
| Głębokość | 28 mm |
| Wysokość | 64 mm |
| Masa skrzydła (maks.) | 45 kg |
| Szerokość skrzydła (maks.) | 1100 mm |
| Rodzaj drzwi | zlicowane, przylgowe |
| Grubość skrzydła od | 38 mm |
| Luz wrębowy | ok. 6 mm przestrzeni w obszarze dźwigni |
| Sposób montażu | ukryty |
| Amortyzator regulowany | Tak, przez zawór |
| Amortyzator w kierunku zamykania od | 25 ° |
| Zakres ruchu swobodnego drzwi | 25 ° - 60 ° |
| Amortyzator w kierunku otwierania od | 60 ° |
| Kąt otwarcia drzwi regulowany | Tak, bezstopniowo |
| Regulowana pozycja podtrzymania otwarcia | 80 ° - 140 ° |
| Zawór bezpieczeństwa chroniący przed przeciążeniem | Tak |
Do pobrania
Warianty i akcesoria
* Informacja o prezentowanych produktach
Produkty opisywane powyżej w zależności od kraju mogą mieć inny kształt, typ, charakterystykę i funkcjonalność (konstrukcję, wymiary, dostępność, dopuszczenia, normy itp.). W razie pytań prosimy o kontakt z osobą do kontaktu w firmie GEZE lub przesłanie nam E-Mail .