RWA K 600 G * Napęd ramieniowy do montażu na oknach i drzwiach ze stałym podłączeniem za pomocą szyny ślizgowej
- Otwieranie okien do 90° w czasie poniżej 60 sekund
- Silny napęd o wysokim momencie obrotowym
- Kabel przyłączeniowy łatwo wymieniany za pomocą wtyku
- Zintegrowany styk sygnalizacyjny do informacji zwrotnych
- Zintegrowana synchroniczna jednostka sterująca, która może obsługiwać maks. dwa napędy bez zewnętrznej jednostki sterującej
- Certyfikowano jako grawitacyjne urządzenie do odprowadzania dymu i ciepła (NRWG) wg EN 12101-2
Obszary zastosowań
- Instalacje odprowadzania dymu i ciepła oraz wentylacja grawitacyjna (24 V)
- Okna otwierane do wewnątrz i na zewnątrz ze skrzydłami uchylnymi górą, uchylnymi dołem i rozwiernymi
- Montaż na oknach z drewna, tworzyw sztucznych lub metalowych
- Montaż na skrzydle i na ramie
- Możliwy montaż na drzwiach
Specyfikacje produktu
| RWA K 600 G | |
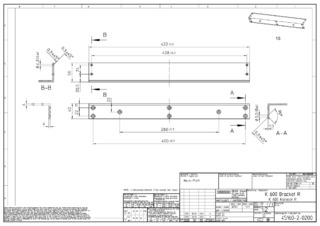
| Wymiary | 421 x 40 x 86 mm |
| Materiał obudowy | Aluminium |
| Siła domknięcia (maks.) | 3000 N |
| Siła nacisku | 600 N |
| Siła ciągnąca | 600 N |
| Napięcie w trybie pracy | 24 V ± 25 % |
| Napięcie robocze | 24 V DC |
| Pobór prądu | 1.4 A |
| Tętnienie szczątkowe | 20 % |
| Czas włączenia | 30 % |
| Długość kabla przyłączeniowego | 5 m |
| Długość niestandardowa kabla przyłączeniowego | 10 m |
| Min. przekrój żył | 0.5 mm² |
| Liczba żył | 5 zyly |
| Temperatura robocza | -5 - 75 °C |
| Stopień ochrony | IP32 |
| Klasa ochrony | III |
| Funkcja zsynchronizowania | Tak |
| Regulowana prędkość otwierania (przewietrzanie) | Tak |
| Możliwość podłaczenia siłownika ryglującego | Tak |
| Rodzaj dodatkowego rygla | Napęd ryglujący |
| Sposób skrócenia wysuwu | Urządzenie nastawcze |
| Wyłączenie w pozycji krańcowej wysunięcia | Wewnętrzny czujnik drogi |
| Wyłączenie w pozycji krańcowej wsunięcia | Wewnętrzny czujnik drogi |
| Zabezpieczenie przeciążeniowe | Tak |
| Atestowane urządzenie do grawitacyjnego odprowadzania dymu i ciepła | Tak |
| Liczba napędów do synchronizacji | 2 |
| Okno uchylne górą DO WEWNĄTRZ montaż na ramie | Tak |
| Okno uchylne górą DO WEWNĄTRZ montaż na skrzydle | Tak |
| Okno uchylne górą NA ZEWNĄTRZ montaż na ramie | Tak |
| Okno uchylne górą NA ZEWNĄTRZ montaż na skrzydle | Tak |
| Okno obrotowe DO WEWNĄTRZ montaż na ramie | Tak |
| Okno rozwierne DO WEWNĄTRZ montaż na skrzydle | Tak |
| Okno rozwierne NA ZEWNĄTRZ montaż na ramie | Tak |
| Okno rozwierne NA ZEWNĄTRZ montaż na skrzydle | Tak |
| Okno uchylne dołem DO WEWNĄTRZ montaż na ramie | Tak |
| Okno uchylne dołem DO WEWNĄTRZ montaż na skrzydle | Tak |
| Okno uchylne dołem NA ZEWNĄTRZ montaż na ramie | Tak |
| Okno uchylne dołem NA ZEWNĄTRZ montaż na skrzydle | Tak |
Do pobrania
LABELLING OBLIGATION: © Lorenz Frey / GEZE GmbH
LABELLING OBLIGATION: © GEZE GmbH
Warianty i akcesoria
* Informacja o prezentowanych produktach
Produkty opisywane powyżej w zależności od kraju mogą mieć inny kształt, typ, charakterystykę i funkcjonalność (konstrukcję, wymiary, dostępność, dopuszczenia, normy itp.). W razie pytań prosimy o kontakt z osobą do kontaktu w firmie GEZE lub przesłanie nam E-Mail .